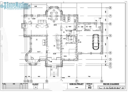
Métré, plans, mémoire technique et DOE

Partager l'annonce

Gestion de l'annonce

Modifier l'annonce Retirer l'annonce

Statistiques de l'annonce

Nombre de vues : 408

Dernière visite le : 19/04 à 16:55

Référence : 216039

Informations générales

120,00 €

33000 Bordeaux

Annonce déposée

Détail de l'annonce

Notre bureau freelance intervient sur toute la France pour répondre aux besoins des entreprises de couverture - étanchéité, entreprises de bardage - façade, entreprises de charpente et entreprises générales.

Quantitatifs ouvrages : pour permettre aux entreprises de répondre à des appels d’offres
Réalisation Mémoire technique, BPU et DQE
Accompagnement de l'entrepreneur durant la période d'étude d'exécution de leur(s) marché(s)
Conseil choix des matériaux
Plan de principe et carnet de détail détaillé
Plan de fabrication et quantitatifs de l’ensemble des matériaux nécessaires
Réalisation Dossier Ouvrages Exécutés

Signaler l'annonce