Appartement vente sans riba

Partager l'annonce

Gestion de l'annonce

Modifier l'annonce Retirer l'annonce

Statistiques de l'annonce

Nombre de vues : 595

Dernière visite le : 03/12 à 23:56

Référence : 217848

Informations générales

125 000,00 €

91150 Etampes

Annonce déposée

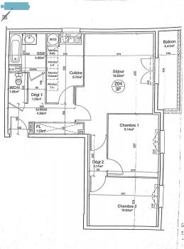
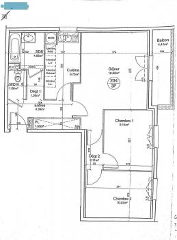
Détail de l'annonce

Salem aleykoum

Je vend mon appartement à une personne qui pourra le payer comptant ou à terme

Je précise qu'il est actuellement loué à 943 euros par mois (charges de copropriété incluses )

Plus dinfos et photos en privé

Signaler l'annonce